Добро пожаловать на http://vipplan.ru

Випплан Артемовский - это тысячи проектов домов в нашем каталоге!

Вы всегда сможете найти для себя проект дома вашей мечты! Даже если этого не случилось, мы готовы в любую минуту предложить проект индивидуального дома.

Забыли пароль?
Вы еще не регистрировались?

Перейдите по ссылке ниже на страницу регистрации.

Регистрация...

Внимание!!!

В проектную документацию могут быть внесены изменения любой сложности, в соответствии в Вашими пожеланиями!

Полезные статьи

Выбор проекта дома (площадь, этажность - 1 или 2 этажа)

Для того что бы выбрать проект дома, предварительно необходимо определиться, какой будет площадь будущего дома (решение зависит от количества человек, планирующих постоянно в нем проживать), количество спален, санузлов и ванных комнат, компоновка дома, одноэтажный, масардный или двухэтажный дом (зависит от площади участка и предпочтений будущих хозяев) ...

Правильная изоляция подвала

Какой выбрать материал, как правильно выполнить работу, перед началом изоляции подвала какие подготовительно-строительные работы следует провести и какой момент играет правильное выполнение работ. Последние несколько лет придали много хлопот жильцам домов, увлажнив им подвалы. Этот период показал насколько важно обеспечить надлежащую защиту зданий от грунтовых вод и воздействия влаги....

Проекты домов и коттеджей > Каталог проектов домов > Проект дома с гаражом и просторной гостиной Vg2353

Проект дома с гаражом и просторной гостиной Vg2353

Проект дома с гаражом и просторной гостиной
Зарегистрируйтесь

Проект № Vg2353


Техническое описание
Общая площадь: 130.94 м2
Жилая площадь: 62.91 м2
Высота здания: 6.6 м
Размеры дома: 13.44м×15.04м
Кол-во комнат: 3
Цокольный этаж: нет
Гараж: есть
Мансарда: нет

Kонструкция
Фундамент: Ленточный
Перекрытия: Деревянные балки
Материал стен: Газобетон

Архитектурный раздел
Конструктивный раздел
АР+КР - 52 000 (Со скидкой 20%)
Модель проекта индивидуального одноэтажного жилого дома с размерами здания 13,44 x 15,04 м. Наружная отделка здания - фасадная штукатурка. Фундамент - ленточный, монолитный ж/б. Наружные стены - газобетонный блок с отделкой фасадной штукатуркой. Внутренние стены - газобетонный блок. Перегородки - газобетонный блок и забутовочный кирпич. Пол этажа - пол по грунту. Чердачное перекрытие - деревянные балки перекрытия. Крыша многоскатная. Кровля - битумная черепица. Окна - металлопластиковые.
Генплан застройки участка / Паспорт проекта 7000 руб / 10000 руб
Инженерный раздел (полный) 65500 руб
Смета на строительство 32750 руб
Теплотехнический расчет материалов стен Бесплатно
Стоимость проекта со незначительнми изменениями 61700 руб
Стоимость проекта со средними изменениями* 71600 руб
Стоимость проекта со значительными изменениями** 74200 руб

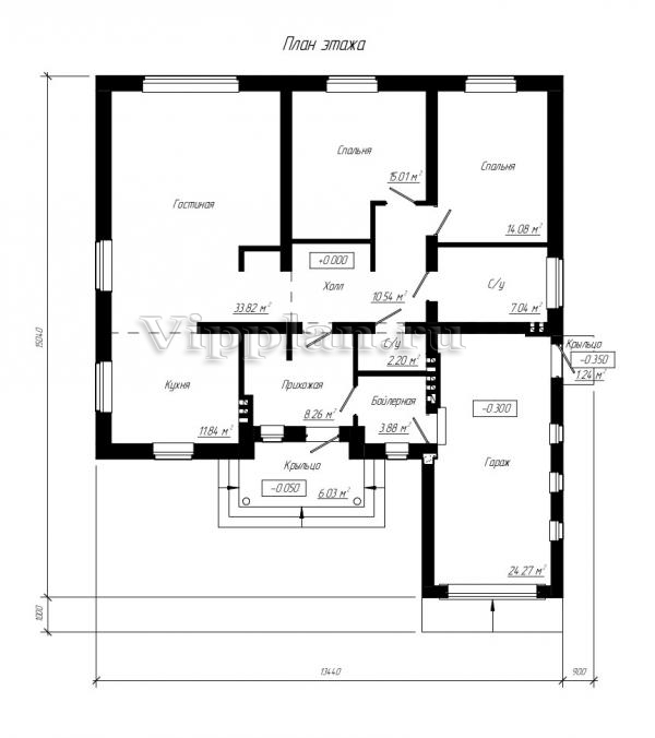
План первого этажа


Прихожая - 8,26 кв м
Холл - 10,54 кв м
Кухня - 11,84 кв м
Гостиная - 33,82 кв м
Спальня - 15,01 кв м
Спальня - 14,08 кв м
С/у - 7,04 кв м
Гараж - 24,27 кв м
С/у - 2,20 кв м
Бойлерная - 3,88 кв м
Проект дома с гаражом и просторной гостиной Проект дома с гаражом и просторной гостиной Проект дома с гаражом и просторной гостиной Проект дома с гаражом и просторной гостиной
Внесение изменений и привязка к участку строительства

В любой из проектов от компании VIPplan - Артемовский по вашему желанию могут быть внесены изменения в материалы стен, материалы наружной отделки дома, а также будет произведена адаптация проекта под конкретный регион строительства (с учетом грунтов региона, геологических особенностей вашего участка и местных климатических условий) - БЕСПЛАТНО !!! (кроме проектов со скидкой и проектов наших партнеров).

Любой из проектов, размещенных на сайте artemovskiy.vipplan.ru мы можем выполнить из требуемых вам строительных материалов: ячеистый бетон (газобетон, пеноблок), керамоблок, кирпич, шлакоблок, бетонный блок, дерево (брус, клееный брус), каркасная технология (деревянный каркас, металлокаркас (ЛСТК)).

Фасад дома и его наружную отделку так же возможно выполнить с применением различных облицовочных материалов: структурной штукатурки, (с утеплителем и без), сайдингом (пластиковый или металлосайдинг), фиброплитами, кирпича.

 
6 Избранные
проекты

Доставка проектов по России: Москва (Московская область), Санкт-Петербург (Ленинградская область), Краснодар, Ростов-на-Дону, Ставрополь, Сочи, Волгоград, Новосибирск, Белгород, Брянск, Воронеж, Саратов, Хабаровск, Астрахань, Нальчик, Владикавказ, Екатеринбург, Тюмень, Самара, Нижний Новгород, Казань, Пермь, Уфа, Челябинск, Красноярск, Ханты-Мансийск, Иркутск, Курган, Оренбург, Омск, Томск, Барнаул, Новокузнецк, Кемерово, Абакан, Чита, Якутск, Южно-Сахалинск, Петропавловск-Камчатский и страны ближнего зарубежья: Белоруссия, Украина, Казахстан